Take our 1 minute quiz and find out how we can help you achieve your dream
Take the quiz

108/125 Turner Street, ABBOTSFORD VIC 3067

Sold
1
1
1
Unit

Description

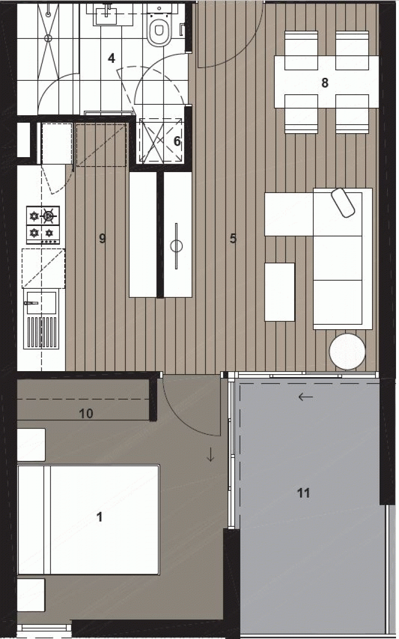
Be first to inspect this one bedroom apartment in the exciting complex “Riviere”. Architecturally designed and beautifully finished, this luxury Abbotsford residence with modern interiors will impress from the moment you step inside.

Riviere is a modern classic development featuring spacious interiors and convenient inner-city living. This brilliantly designed apartment boasts state of the art kitchen with Blanco stainless steel appliances, including gas cook top, electric oven and dishwasher, large light and bright lounge overlooking private balcony, spacious bedroom with mirrored built in robes, luxurious main bathroom with chic fittings throughout, and European style laundry.
Other features include; stunning polished floorboards, carpeted bedroom, split system heating and cooling, intercom entrance lift access, undercover basement parking with remote access and storage cage.
Set back from the hustle and bustle you can enjoy a quiet lifestyle within walking distance to shopping and entertainment with rear access to the tranquil Yarra River and walking trails. Be quick inspection will be sure to impress! Contact Brad Carlin-Smith 0466605522 for further enquiries.

Property Info

Brad Carlin-Smith

Stay up to date

Get the latest news and insights from The Hopkins Group, as it happens.

Newsletter

Name(Required)
This field is for validation purposes and should be left unchanged.
The Hopkins Group

Street Address

Level 23, 500 Collins Street, Melbourne, VIC 3001

Postal Address

GPO Box 4347, Melbourne, VIC 3001

Office Hours

8:30am - 5:00pmMonday - Friday (after hours by appointment)
© 2023 The Hopkins Group | All Rights ReservedPrivacy PolicyDisclaimer PolicyDeveloped by Digital Six