Take our 1 minute quiz and find out how we can help you achieve your dream
Take the quiz
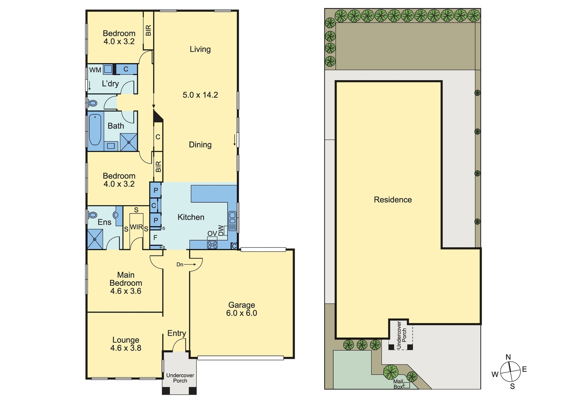
19 Alexandra Gardens CAROLINE SPRINGS VIC 3023 Australia

19 Alexandra Gardens, CAROLINE SPRINGS VIC 3023

Sold $760,000
3
2
2
House

Description

We are excited to present a sensational family home located in a quiet yet convenient position within Cypress Views, this three-bedroom multiple living zone home boasts some fantastic features including double lock up garage spacious bedrooms a kitchen that will suit all master chiefs all on a land size of approx.448sqm.

The main bedroom has a generous size walk in robe and ensuite bathroom, adjacent the front lounge area which could easily be converted to a fourth bedroom or home office.

Moving through the home past the convenience of internal garage access to the home for added security and ease of transferring the kids and groceries or both you are met with a burst of ample natural light a large well-appointed kitchen including 900ml gas cooker/oven, clean ample bench surfaces lots of storage all overlooking the dining and second living area bathed in natural light.

Two more spacious bedrooms complete with BIRs are serviced by a central bathroom with bath and shower and a separate toilet and laundry. Other features include ducted heating and reverse cycle air conditioning, this is one not to miss.

Located minutes away from Caroline Springs Square and the Watervale Shopping Centre as well as various other amenities including schools, public transport and parkland makes this home the perfect opportunity for home buyers, downsizers or savvy investor.

For further details contact our Head of property Sales Brad Carlin-Smith 0466605522

DISCLAIMER: Every precaution has been taken to establish the accuracy of the above information but it does not constitute any representation by the vendor or agent/agency.

Brad Carlin-Smith

Stay up to date

Get the latest news and insights from The Hopkins Group, as it happens.

Newsletter

Name(Required)
This field is for validation purposes and should be left unchanged.
The Hopkins Group

Street Address

Level 23, 500 Collins Street, Melbourne, VIC 3001

Postal Address

GPO Box 4347, Melbourne, VIC 3001

Office Hours

8:30am - 5:00pmMonday - Friday (after hours by appointment)
© 2023 The Hopkins Group | All Rights ReservedPrivacy PolicyDisclaimer PolicyDeveloped by Digital Six