Take our 1 minute quiz and find out how we can help you achieve your dream
Take the quiz

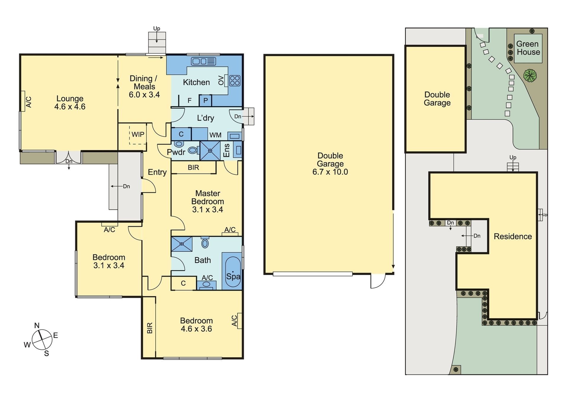
41 Waters Drive, SEAHOLME VIC 3018

Sold $910,000
3
2
2
House

Description

Situated in the quiet Noordenne Estate this property offers its new owners a plethora of opportunities.

On 533sqm (approx) of land with a north facing backyard that is adjacent parkland this property has all the hall marks of a sound investment and potential for future development (STCA).

Currently with three spacious bedrooms and two bathrooms featuring polished floors throughout and ample natural light throughout the home. In addition there is split system heating and cooling in all rooms including the lounge.

The side drive access leading to a large double garage /Shed complete with auto roller door and high ceiling heights for greater storage of the boat etc there are even guiding lights in the driveway to assist with reversing into the garage.

A quiet street location with plenty of parklands surrounding this estate inclusive Cherry Lake, Bike/Walking pathways and marine park access via either Williamstown or Altona Boat Ramps. Schools, restaurants and Cafes a plenty only a short drive.

This property will suit owner occupiers Investors and Developers alike. Contact our Head of Property Sales Brad Carlin-Smith 0466605522 for further enquiries.

Brad Carlin-smith

Stay up to date

Get the latest news and insights from The Hopkins Group, as it happens.

Newsletter

Name(Required)
This field is for validation purposes and should be left unchanged.
The Hopkins Group

Street Address

Level 23, 500 Collins Street, Melbourne, VIC 3001

Postal Address

GPO Box 4347, Melbourne, VIC 3001

Office Hours

8:30am - 5:00pmMonday - Friday (after hours by appointment)
© 2023 The Hopkins Group | All Rights ReservedPrivacy PolicyDisclaimer PolicyDeveloped by Digital Six