Take our 1 minute quiz and find out how we can help you achieve your dream
Take the quiz
122 Mansfield Street THORNBURY VIC 3071 Australia

122 Mansfield Street, THORNBURY VIC 3071

Sold
3
1
House

Description

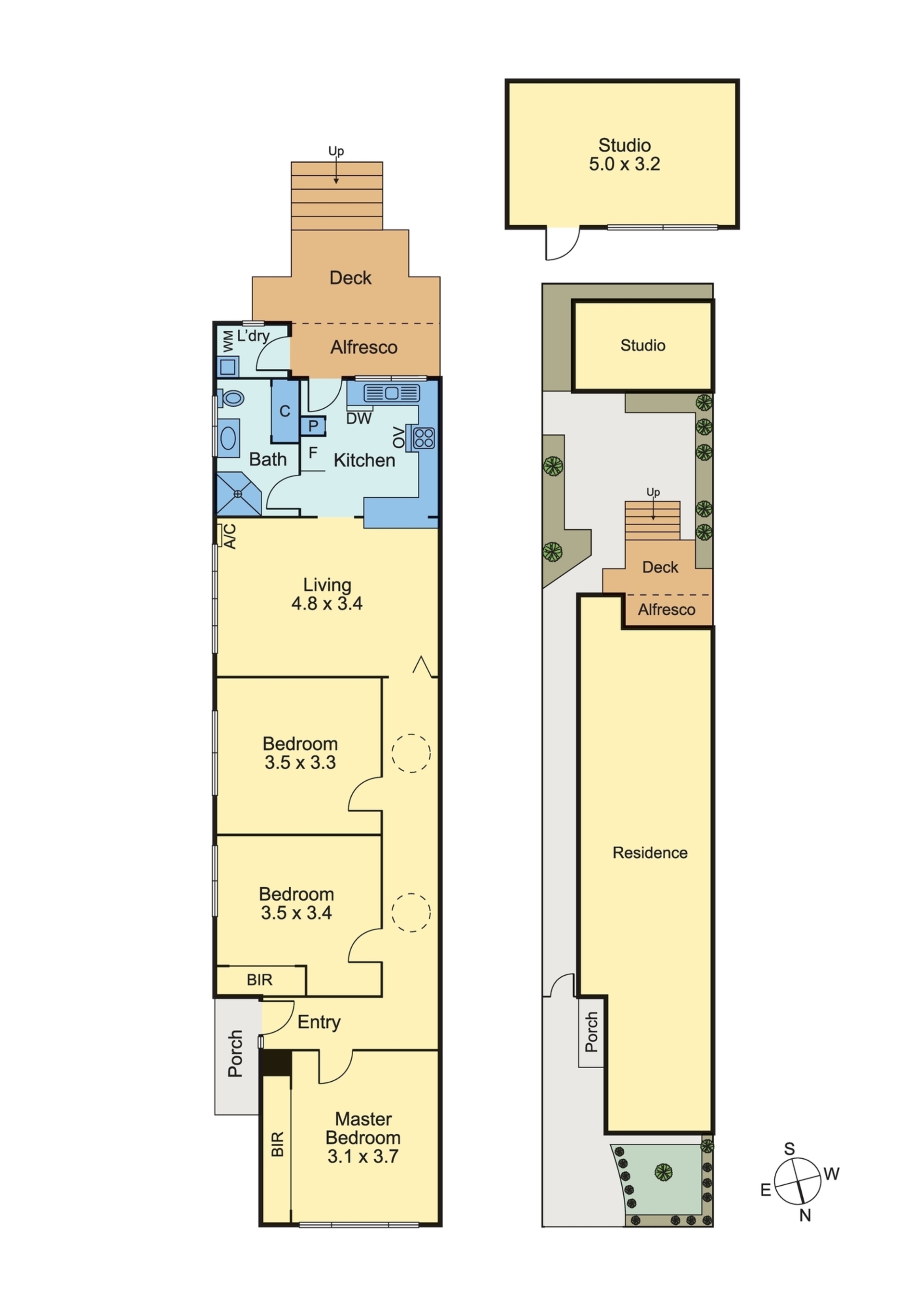
The moment you enter this home you are swept up in its charm from high ceilings all the way through to the private rear courtyard bathed in morning sun this Thornbury gem is a wonderful opportunity to live in one of Thornbury’s premier streets.

Comprising off street car parking for one, this three bedroom home will suit owner occupiers and investors alike and if you enjoy swinging a hammer there is scope for improvement. Comprises heating and cooling, security system and stunning polished floors compliment this home.

With a café 2 doors down a stroll for a morning coffee isn’t difficult enjoy the great things that Thornbury and inner city living has to offer.

Please contact our Head of Property Sales Brad Carlin-Smith 0466605522 for further enquiries

Brad Carlin-smith

Stay up to date

Get the latest news and insights from The Hopkins Group, as it happens.

Newsletter

Name(Required)
This field is for validation purposes and should be left unchanged.
The Hopkins Group

Street Address

Level 23, 500 Collins Street, Melbourne, VIC 3001

Postal Address

GPO Box 4347, Melbourne, VIC 3001

Office Hours

8:30am - 5:00pmMonday - Friday (after hours by appointment)
© 2023 The Hopkins Group | All Rights ReservedPrivacy PolicyDisclaimer PolicyDeveloped by Digital Six