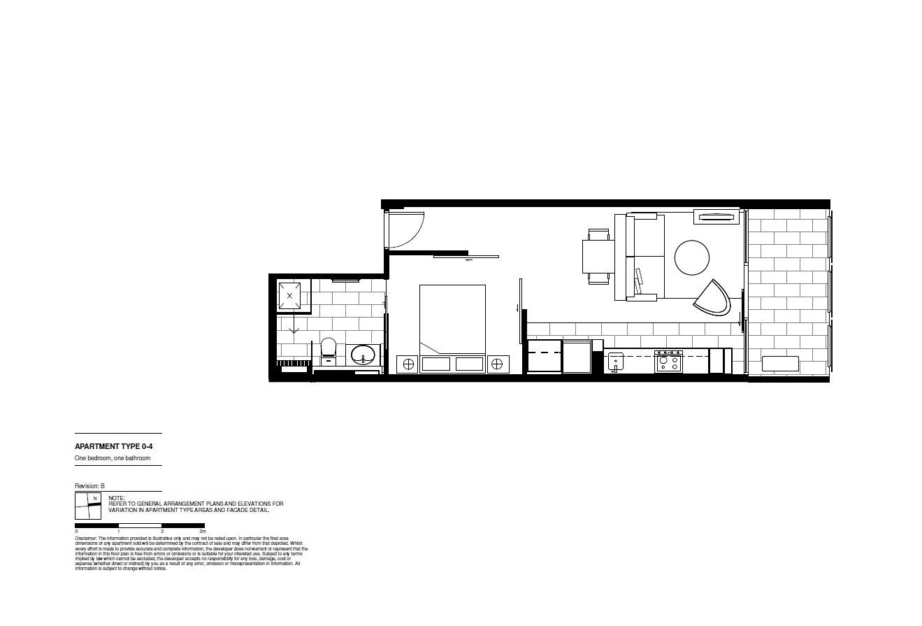
This stunning 1-bedroom 1 bathroom apartment is ideal for the investor or owner occupier who wants to be in the heart of South Yarra. Have at your door step the convenience of public transport either trains or trams, shops, cafes, restaurants only a short trip to Melbourne’s CBD, amazing gardens and sporting precinct.
The apartment itself is spacious with open plan living and well-appointed galley style kitchen inclusive gas cooking Miele appliances and full integrated dishwasher. Stepping out to a large balcony that is the width of the apartment.
The unit includes heating/ cooling and the complexes facilities include indoor pool and fully equipped gymnasium.
To arrange a private inspection please contact our Head of Property Sales Brad Carlin-Smith 0466605522.
Get the latest news and insights from The Hopkins Group, as it happens.
Street Address
Postal Address
Contact Us
Office Hours